1. HOME
  2. >
  3. 住宅
  4. >
  5. Hm_house

Hm_house

Residence | 12.07

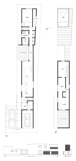
ProjectName:十六.五間堂
間口は3m、奥行きが30m(十六.五間)。これ以上は生活を成り立たたせることが
できない、限界ギリギリまで細長い住まい。
この驚異的に細長い建物形状も、間口5mの敷地で、1mの外壁後退距離を確保する
という設計条件の必然から導かれた。
外観のイメージを裏切るように、建物内に一歩足を踏み入れると、全く狭さを感じ
ない明るいLDKが広がり、中央の中庭が、視覚的な広がりを作り出すと同時に、建
物の隅々まで光と風を運ぶ。
長い奥行きが作り出す空間のシークエンスは暮らしにメリハリを与え、豊かな生活
を醸成する。
お城山のふもとの城下町。昔ながらの風情を残す閑静な住宅街で十六.五間堂は竣工
を迎えた。

建築設計全般、インテリアデザイン、家具・什器のデザイン・制作、その他各種イベント
ブース等の設計を行っております。キューブデザインに興味がある、話を聞いてみたい、
資料が欲しいなど、どうぞお気軽にお問い合わせ下さい。

  • Email
  • 資料請求