継承する住宅

hk_house

歴代の住職が手を加えながら、長く住み継がれてきた住まい。
何百年ものあいだ、その時々の暮らしに合わせて増改築が重ねられてきました。今回、住職を受け継ぐことをきっかけにリノベーションの計画がスタート。和室や建具、庭などの伝統的な要素を大切に受け継ぎ、新たな住み手の感性を加えることで、現代の暮らしに相応しいモダニズムが息づく空間へと生まれ変わりました。


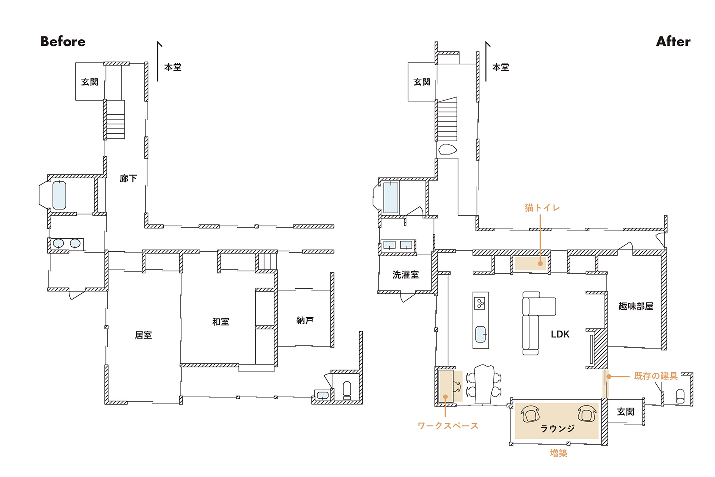
図面で見る間取りの変化

Before
和室を中心として縁側越しに庭が広がる和風建築様式の建物。住居部分から本堂へ繋がる長い廊下の途中に玄関がありました。窓は大きく、採光は十分にありそれぞれの個室は広く設えられていました。

After
和室と居室をひとつながりのLDKとして再構成し、広がりのある空間へ。庭を眺めながらくつろげるラウンジスペースを新たに増設。暮らしの変化に合わせて、愛猫のためのトンネルやトイレスペースも設け、人と動物が心地よく共に過ごせる住まいとなりました。


リビング|和の趣を受け継ぐ

かつて和室だった空間を、住まいの中心となるリビングとして再構成しました。装いの記憶を継承しながら、隣接する居室との仕切りを取り払い、キッチンとダイニングを設け空間の拡張を行いました。床材は畳からモールテックスに変更。和室の天井装飾がそのまま残ることで、空間にさりげない特別感を添えています。

ラウンジ|庭とつながる、もうひとつの居場所

リビングから庭へ広がっていくようにラウンジを増築しました。床を一段下げ、天井は人が立てるほどの最小限の高さに抑えることで、落ち着きと包容感を演出。天井に勾配をつけることで、自然と庭へ視線が抜け、広がりを感じる空間としています。日常の中に自然とのつながりを取り込む、もう一つの静かな居場所となりました。

キッチン|暮らしの中心に据えたアイランド型

キッチンは、回遊性のあるアイランド型に変更しました。空間の中央に配置することで、家族と向き合いながら料理ができ、食事の準備や片付けもスムーズに行えます。ラウンジやダイニング、庭とのつながりも自然に生まれ、暮らしの中心となる場所へと生まれ変わりました。

ワークスペース|思い出とともに働く場所

以前から使っていたアンティークの机と椅子を置く、ワークスペースを設けました。新しい空間の中にも、長年使い続けてきた道具があることで、どこか懐かしさと安心感が漂います。

廊下|職と住の気持ちを切り替える通り土間

住まいと本堂をつなぐ長い通り土間は、暮らしと仕事の気持ちを切り替える場所。外と内をゆるやかに結ぶこの空間が、日々の営みに静かな区切りを与えてくれます。

設計について|継承して、再生すること

この建物には、長い年月を経て積み重ねられてきた意匠や暮らしの痕跡がありました。それらをただ残すのではなく、現在の暮らしに馴染むかたちで再解釈し、再生することを心掛けました。伝統的な和の要素や職住一体の構成を尊重しながらも、新たな住まい手の視点で更新すること。過去と現在、そしてこれからの暮らしが、自然につながっていくような設計を目指しました。


長い年月を経て、住み継がれてきたこの家には、家族の記憶が静かに息づいています。伝統的な意匠や素材を丁寧に読み解きながら、現代の暮らしに合うように再構成しました。過去と現在、そしてこれからの暮らしに寄り添い、日々の中で小さなな喜びを感じることができる住まいになることを願っています。

一覧にもどる

RELATED ARTICLE