性能×デザイン

cube designが考える新しい家づくり

cube designが考える、これからの断熱性・気密性

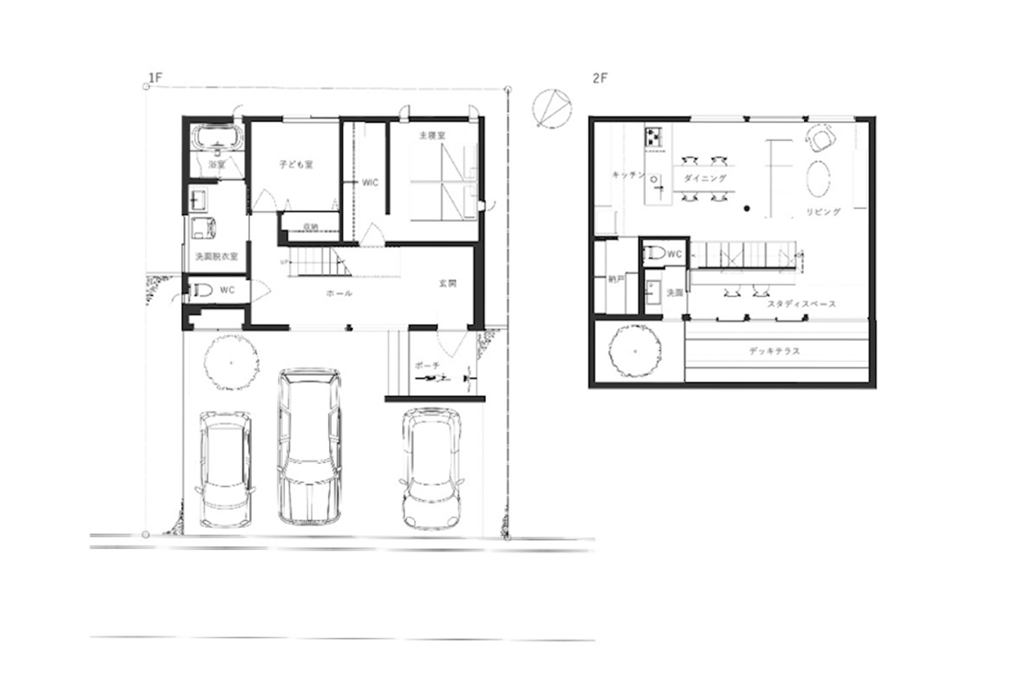
「デザインがいい家」「家事がしやすい家」「地震に強い家」「夏は涼しく、冬は暖かい家」「予算を最優先で建てる家」。家づくりにおいて、何を最優先するかは人それぞれです。見た目や空間の動線、金額といった目に見えるキーワードももちろん大切ですが、一方で地球温暖化やさまざまなエネルギーの問題がこれまで以上に深刻化し、家づくりにもその対策が必要となってくるとcube designは考えています。

今回、新潟市西区坂井東のプロジェクトでは、当社の物件で初めて断熱性・気密性の数値やスペックを可視化し、断熱性・気密性を重視した家づくりを行いました。また、これからの断熱性能の指標となりうる「HEAT20」のG1グレードを達成し、デザインや空間性に加え、快適さを作り出す高性能の家づくりを実現しています。


HEAT20 とは

2009年に研究者、住宅・建材生産者団体の有志によって発足した「2020年を見据えた住宅の高断熱化技術開発委員会(Investigation committee of Hyper Enhanced insulation and Advanced Technique for 2020 houses)」。地球温暖化とエネルギー問題を見据え、住宅における更なる省エネルギー化を図るため、断熱などの建築的対応技術に着目し、住宅の熱的シェルターの高性能化と居住者の健康維持と快適性向上のための先進的技術開発、評価手法、そして断熱化された住宅の普及啓蒙を目的とした団体。


基本情報


HEAT20 G1 グレードについて

今回のプロジェクトで目指すべき室内温度環境は…

 ・最も体感温度が低いときの温度がおおむね10℃を下回らないこと
 ・各部屋の体感温度が15℃以下となる時間割合が20%程度であること

HEAT20では室内温度環境を冬の期間における家の中の「最も体感温度が低いときの温度」と「各部屋の体感温度が15℃以下となる時間割合」で表しています。また、省エネルギー性については、現行の省エネ基準と比較して、約30%の効率アップを目指しています。

断熱性能について

前述の室内温度環境や省エネルギー性を達成するために重要となるのが、建物の断熱性能です。断熱性能は、「外皮平均熱貫流率・UA値(W/㎡・K)」といわれる建物の外皮、いわゆる壁や屋根、床、開口部などからの熱の逃げやすさを表す数値で判断します。建物の大きさ、使用する断熱材の種類や厚み、サッシの種類や大きさなどの条件によって数値が算出され、値が小さいほど熱が逃げにくく、断熱性が優れているということになります。HEAT20 G1グレードでは、0.48W/㎡・K以下が基準となります。

LDKの断熱材施工の様子。

気密性能について

なお、この断熱性能をしっかりと発揮するためには、気密性能も重要になります。気密性能は、建物の隙間が少ないほど性能が高く、どんなに性能の高い断熱材や厚いものを使っても、隙間が大きければ外の空気が入り込んでしまい、断熱材が本来持っている性能を発揮できません。気密性能は「相当隙間面積・C値(㎠/㎡)」で表され、値が小さいほど隙間が少ないということになります。このC値に基準はありませんが、一般的に「1.0㎠/㎡以下で高気密住宅」という認識となります。そしてC値を測定するには「気密測定」という検査を行います。今回のプロジェクトでは、0.5㎠/㎡以下を目指して施工と気密測定を行い、0.4㎠/㎡をクリアしました。

気密測定機器 建物の隙間を数値化し測定します。0.5㎠/㎡以下を目指して施工と気密測定を行い、0.4㎠/㎡をクリア。

この目指すべき数値目標を達成するため、特に重要となるのが、窓の取付け、断熱材の選定と断熱方法、気密を高めるための施工です。細やかな部分への徹底したこだわりが、断熱・気密性能の効果を高めます。

断熱材について

今回、断熱材は屋根、壁、床と、それぞれ異なる種類のものを使用しています。特に、壁の断熱材は建物の柱と柱の間を断熱材で埋める「内断熱」と、建物全体を断熱材で包み込む「外断熱」とを採用した「ダブル断熱工法」を採用しました。断熱性能は、使用する断熱材の種類や性能ももちろん大切ですが、壁内の結露などの不具合の防止や断熱性能を発揮するためにも、しっかりと施工をすることのほうが重要となります。

グラスウールの断熱材の厚みの確認。

屋根の断熱材・ウレタンフォームの施工後。

外断熱に使用した断熱材・旭化成のネオマフォーム。

窓について

プロジェクトで使用した窓は、すべてLIXILの「サーモスL Low-E複層ガラス」のアルゴンガス入りのものです。サッシの外部に面する部分は、耐久性や意匠性に優れたアルミ、内部は断熱性や防露性に優れた樹脂を使用し、互いの長所を活かしたアルミと樹脂の複合サッシです。さらに、ガラスに特殊金属膜をコーティングさせることで優れた断熱性を有するLow-Eガラスを使用しています。ガラスとガラスの間には、アルゴンガスという不活性ガスが入っています。このアルゴンガスは「気体の断熱材」ともいわれ、空気よりも熱を伝えにくく、また、空気よりも比重が重いため複層ガラスの中空層で対流が起こるのを抑えて断熱効果を高めています。

気密について

気密性能は建物の隙間を少なくすることで、性能を向上させることができます。そのため、隙間ができやすいポイントを抑えて、そこに注意するだけでも数値は変わってきます。この隙間ができやすいポイントには、柱・梁・土台などの構造材の接合部、開口部の取付け部分、コンセントやスイッチプレートなどが挙げられます。建物の内側を気密シート、気密テープで覆ってもわずかな隙間から外の空気が流れてくるので、あらかじめ気密テープを増張りしたり、ウレタンフォームを吹き付け、隙間を埋めていきます。気密性能に関わる部分は完成してからの手直しが難しい部分ですので、高い施工精度が求められます。

室内の窓まわりの気密処理

外部の窓まわりの気密処理

家の性能を高めるためには、断熱性能と気密性能のバランスはもちろん、使用する断熱材やサッシなどの種類、施工方法も重要であることがわかります。

これらにデザインが加わり、【cube designが考える新しい家づくり】が完成します。

一覧にもどる

RELATED ARTICLE